Toggle navigation
桃園市立南勢國民小學
:::
公務專區
教育公務單一認證授權平台
桃園市教育發展資源入口網
雲端差勤系統
系統登入
教學影片
市府填報及網路通知系統
公文整合資訊系統
桃園市政府教育局VPN系統
桃園市政府教育局Wifi使用SOP
筆電連接eduroam快速設定
教師專區
教室預約系統&修繕系統
進入系統
使用說明
南勢教育Google(請用無痕視窗)
教師信箱登入
教師雲端硬碟登入
個人日曆登入
協作平台登入
教師共用&資料上傳 _網頁版
南勢教師常用資訊_資訊相關
資訊組整合協作平台
學生專區
南勢教育Google(請用無痕視窗)
學生信箱登入
學生雲端硬碟登入
教育部因材網
南勢榮譽成果
學校榮譽
教師榮譽
學生榮譽
評鑑專區
防災教育評鑑
交通安全教育網
營養午餐教育網
環境教育評鑑網
健康促進學校網
校務系統登入
雲端學務系統登入
雲端學務系統操作手冊
行政人員校網管理
:::
本站消息
分月文章
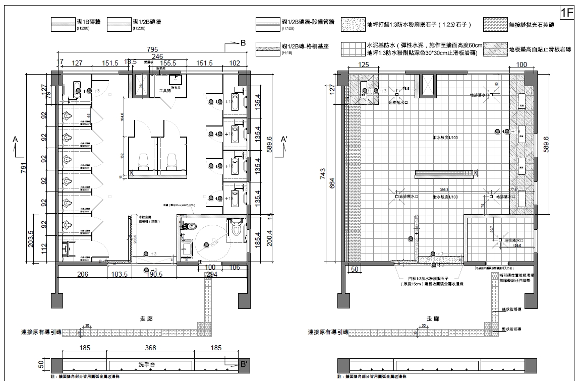
積極樓廁所改建,性別友善廁所規劃如下
公告
事務組長
-
總務處
| 2025-11-26 | 點閱數: 63
本校預計於積極樓一樓規劃性別友善廁所,設計如圖片所示,
對於相關規劃設計若有其他良好意見,歡迎電洽總務處,謝謝。
1) 1764045585157.jpg
2) 1764131535046.jpg
11-26 十月份三項榮譽制度學生6位學生得獎名單可...
11-26 轉知「114年度本土教育人才培育計畫」分...
:::
重要宣導事項
明日閱讀聊書
課程計劃
南勢數位深耕
:::
回上方浮動按鈕